Great News! Library Annex Receives Commission Approval!
Friends of the Fort Bragg Library
October 8, 2025
I am grateful to report that our fundraising efforts have been well-received by our generous coastal community. We held 2 well-attended Book Sale events and 3 restaurant fundraisers earlier this year. We have another restaurant fundraiser planned for October 16th and a Pop Up Book, Pottery and Rock Poster fundraiser scheduled for December 6 and 7. Our $1000 Club fundraising total this year, thus far, is $8000. We have received an estimated total of $20,000 in fundraising efforts this year. Of this funding, we have donated nearly $14,000 to the Fort Bragg Library for programs and services. We also purchased two new rungs, one each, for the children’s room and the teen area.
One of our very generous and dedicated library patrons gifted our organization her home and property, including the entire contents of her home. She was an admirable potter, originally from San Francisco, who created an abundance of beautiful pottery. We have been successfully fundraising her unique pottery and vintage rock posters. October 1st we put the home on the market with an asking price of $650,000. All proceeds from the sale are earmarked for our Library Annex Project.
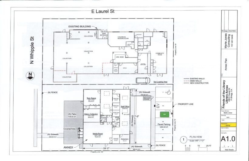
Our building plans have been revised once more this year, with the assistance of our exceptional Planning Consultant, Marie Jones. Our 3,348 square foot Library Annex proposal was approved by the Mendocino Coast Planning Commission October 8th. We have signed a contract with Dancing Dog Designs, as our Project Manager and a timeline has been created. We plan to break ground for our Library Annex at 421 Whipple Street in the Spring of 2026.
Annual Report to the Mendocino County Board of Supervisors from FFBL President, Janice Marcell













